
The Ocotillo Collection Floor Plans Aviano Desert Ridge Homes
About Ocotillo Collection Floor Plans Aviano Desert Ridge
Designed and built by Toll Brothers Homes, the Ocotillo collection floor plans for Aviano at Desert Ridge homes are comprised of six different floor plan models all of which are two story homes and each home offers the homeowner a spacious and functional floor plan.
The average specification range for the Ocotillo collection of Aviano Desert Ridge floor plans are detailed below:
2,956 – 3,785 Square Feet
3 – 4 Bedrooms / 2.5 – 3.5 Bathrooms
2 and 3 car garages
Two story detached homes
San Benito of Ocotillo Collection Aviano Desert Ridge Floor Plans
2,956 Square Feet
3 Bedrooms / 3 Bathrooms
2 Story Home
San Benito Floor Plan
San Benito Second Floor Plan
Strada of Ocotillo Collection Aviano Desert Ridge Floor Plans
3,294 Square Feet
3 Bedrooms / 2.5 Bathrooms
2 Story Home
Strada Floor Plan
Strada Second Floor Plan
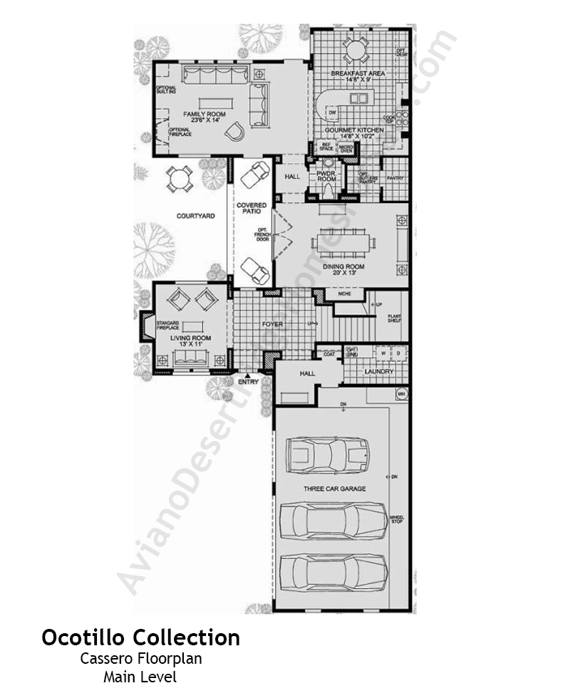
Cassero of Ocotillo Collection Aviano Desert Ridge Floor Plans
3,277 Square Feet
3 Bedrooms / 3 Bathrooms
2 Story Home
Cassero Floor Plan
Cassero Second Floor Plan
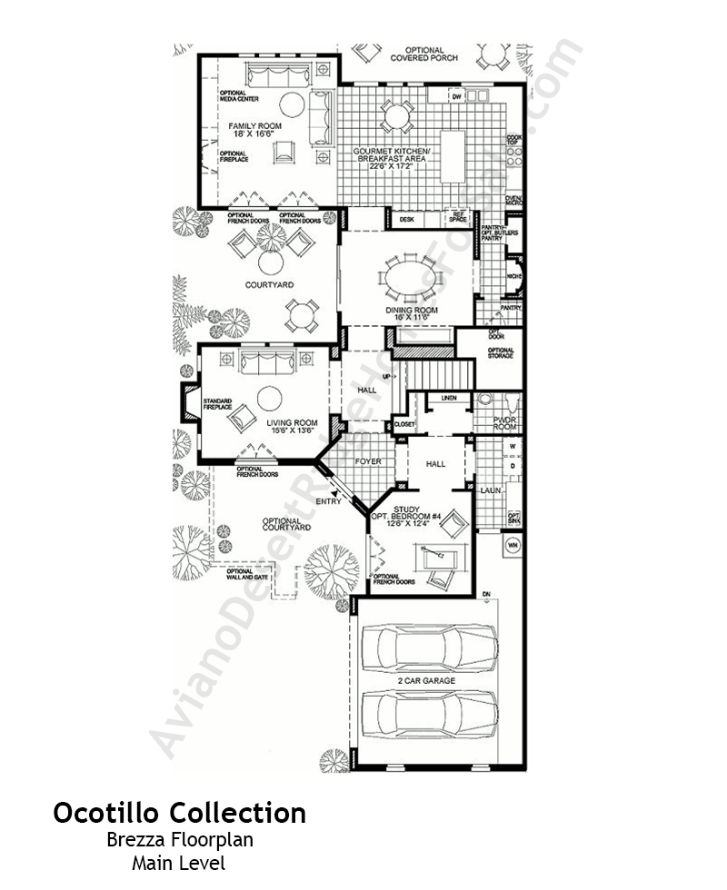
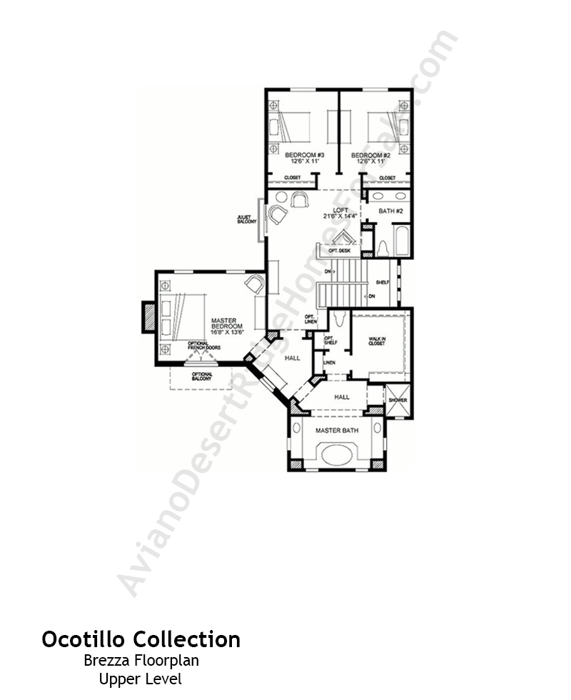
Brezza of Ocotillo Collection Aviano Desert Ridge Floor Plans
3,359 Square Feet
3 Bedrooms / 2.5 Bathrooms
2 Story Home
Brezza Floor Plan
Brezza Second Floor Plan
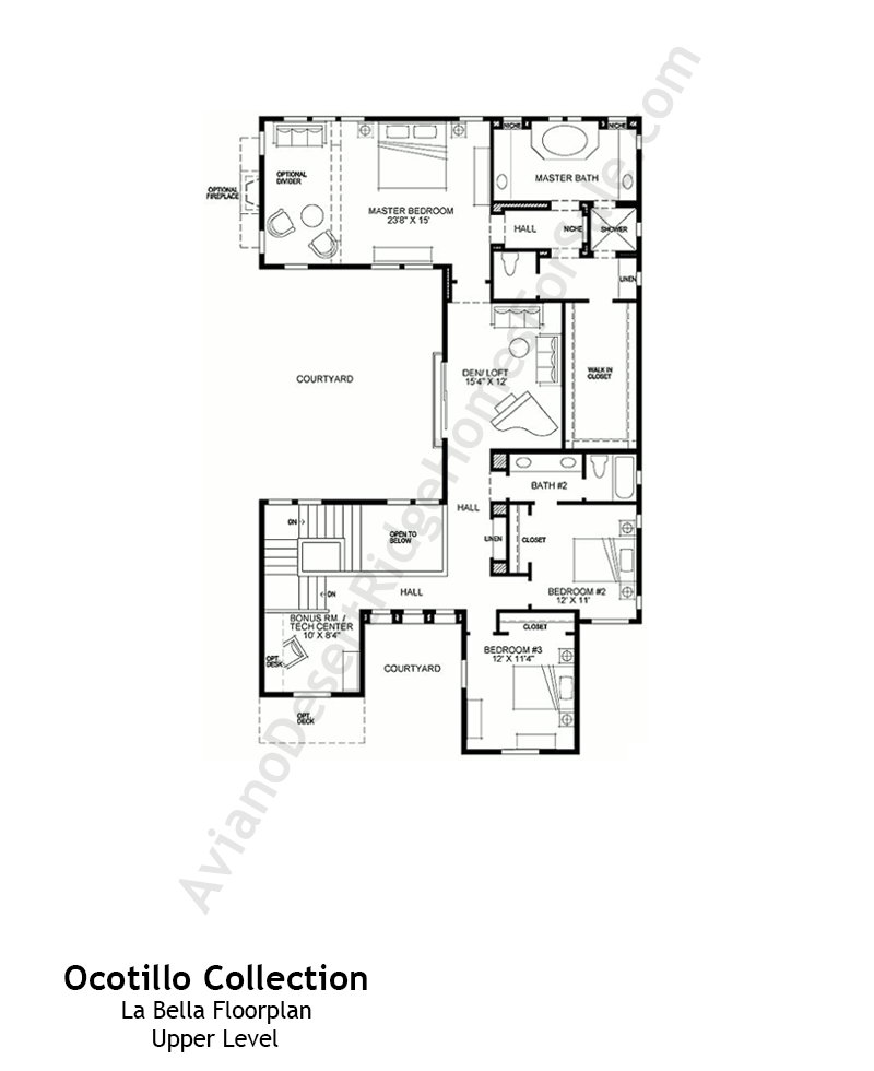
La Bella of Ocotillo Collection Aviano Desert Ridge Floor Plans
3,470 Square Feet
3 Bedrooms / 2.5 Bathrooms
2 Story Home
La Bella Floor Plan
La Bella Second Floor Plan
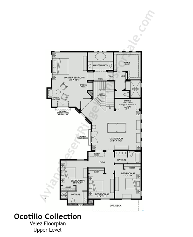
Velez of Ocotillo Collection Aviano Desert Ridge Floor Plans
3,785 Square Feet
4 Bedrooms / 3.5 Bathrooms
2 Story Home
Velez Floor Plan
Velez Second Floor Plan
Give Us a Call
Contact our team today to inquire about the Ocotillo Collection floor plans of Aviano at Desert Ridge, other Aviano Desert Ridge floor plans, Desert Ridge real estate home sales and purchases, or any other Phoenix home sales and purchases in the Valley.





